Expert Electrical Planning & Solutions
Protek Power & Controls Ltd. specializes in serving Agricultural, Commercial, Industrial, and Municipal clients. We offer comprehensive consultation, design, supply, and installation services for electrical systems, controls, and emergency standby power solutions. Discover how we can empower your operations with our expert services.

Our Services
At Protek Power & Controls Ltd., we provide a comprehensive range of services to meet the diverse needs of our clients. From initial consultation to final implementation, we offer innovative and reliable solutions that set the standard in electrical, controls, and power systems. Explore our core areas of expertise below:

Consultation and Advisory Services
Our consultation and advisory services are designed to provide you with the expert guidance needed to make informed decisions. We work closely with you to understand your objectives and challenges, offering practical, actionable advice that ensures the best possible outcomes for your projects.

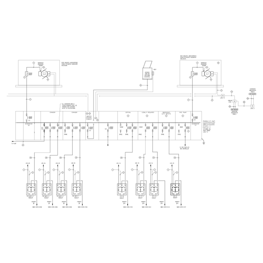
Design work
We specialize in creating custom electrical, control & power generation system designs that meet your exact needs. Our experienced team combines industry knowledge with innovative thinking to deliver systems that are efficient, reliable, and built to last. Whether for new installations or system upgrades, we ensure that every design aligns with your operational goals.

Power Systems
From electrical installations to upgrades and maintenance, we specialize in delivering high-quality power solutions. Our expertise ensures systems that are efficient, safe, and built to last, serving Agricultural, Commercial, Industrial, and Municipal clients with excellence.

Controls
Modern systems demand precision, and we deliver just that. We design, install, and optimize control systems to streamline operations, improve efficiency, and ensure reliability. From automation to monitoring, we provide innovative solutions to meet your specific requirements.

Power Generation
When it comes to emergency standby power, we are the experts you can rely on. We design and supply generator systems that ensure uninterrupted power during outages, tailored to meet the demands of your industry and location.

Service
We design, install, and provide long-term support for every system we sell—and for your existing equipment too. Our service team handles everything from routine maintenance to emergency repairs, keeping your systems running at peak performance. Whether we installed it or it was already in place, we stand by our work and are always ready to keep things running smoothly.
Protek Power & Controls:
Comprehensive, Turnkey Solutions
Founded in 2024, Protek Power & Controls Ltd. was established to address a critical gap in the market for comprehensive, turnkey solutions in the industries we serve. Over the years, we’ve observed that many contractors struggle to provide end-to-end solutions with the integrity and accountability clients deserve, often leaving the customer or end user to act as the general contractor. At Protek, we take on that role wholeheartedly, managing sub-contractors & every aspect of the project to deliver seamless and reliable results.

Core Values
Quality and Expertise:
We pride ourselves on delivering top-notch consultation and advisory services, ensuring that every solution is designed with precision and excellence.
Customer Commitment:
Our clients are at the heart of everything we do. We are dedicated to ensuring their satisfaction through open communication, personalized service, and unwavering accountability.
Integrity:
We operate with honesty, transparency, and respect, building trust with our clients and partners at every step of the process.
Dependability:
You can count on us to deliver results on time and within scope, no matter the complexity of the project.

Nestled in BC’s beautiful Shuswap
Nestled in the beautiful Shuswap region of British Columbia, Protek Power & Controls Ltd. takes pride in supporting local customers while being fully prepared to travel wherever our expertise is needed. Our consulting, advisory, design, and supply services extend across Western Canada, ensuring top-quality solutions for clients near and far.
Have a power problem that needs solving?
Do you have a power problem that needs solving? At Protek Power & Controls Ltd., we take pride in tackling your challenges head-on, providing clear answers to your questions, and delivering expertly designed solutions. Don’t hesitate to reach out—let us show you how we can solve your power needs with confidence and precision.
Local Office: 778 824 0372 | Toll Free: 866 496 6106
